Accueil
Présentation
Projets
Contacts
Accueil
Présentation
Projets
Contacts
Retour
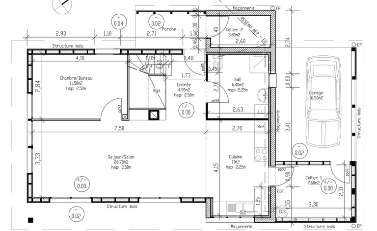
Maison Ermenouville
Maison d'habitation
Ermenouville 76740
Maîtrise d 'ouvrage: Commune d'Ermenouville
Surface de plancher: 120 m²
Montant des travaux: 295 000€ HT
Réception 2020
Construction ossature bois + maçonnerie bardage bois, enduit, menuiseries aluminium, toiture ardoise
Contact
Email
Téléphone
lenalt.archi@gmail.com
06 63 09 07 11