Accueil
Présentation
Projets
Contacts
Accueil
Présentation
Projets
Contacts
Retour
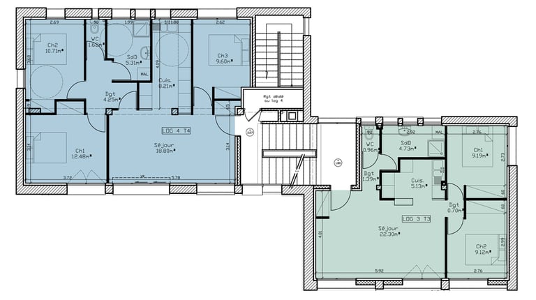
Log Apt
Transformation d'un immeuble de bureaux en 6 logements
Apt 84400
Maîtrise d 'ouvrage: Privée
Surface de plancher: 540 m²
Montant des travaux: 490 000€ HT
Réception 2021
Logement type T3&T4
Contact
Email
Téléphone
lenalt.archi@gmail.com
06 63 09 07 11